6x10 Clear White Aspen Custom Sauna Kit
From $5,202.00
To $9,759.75
In stock
This is a 8 Person COMPLETE Sauna Package
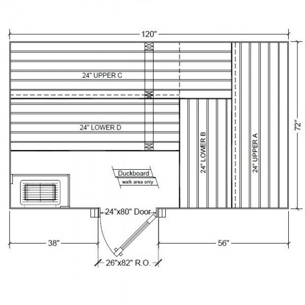
72"D x 120"W x 84"H
- Only Select Grade Vertical Grain Clear White Aspen from Winter Harvest is Used. Each Clear Aspen Board is Obsessively Inspected and Hand Selected
- A Completely Hypoallergenic Sauna Kit for Multiple Chemical Sensitivity Disorder
- Simple Installation with Pre-Hung Door and Detailed Instructions
- Double Tier L-Shaped Pre-Assembled Benches and Backrests are Included
- Specialized Vapor Proof Sauna Light, Ventilation Valve, Pre-Assembled Heater Guard Rail, All Detailed Trim Moldings for Corners and Hardware are Included
- Aluminum Foil Sauna Vapor Barrier is Included
- Your Choice of Finnish Manufactured Premium Sauna Heaters
- See Description below for the Complete List of Items Included
When Detoxification is a Medical Requirement
This is a completely hypoallergenic sauna kit for those suffering from MCS (multiple chemical sensitivity) disorder or just want the best sauna material to detoxify their bodies. Clear white aspen is the wood that must be used for those sensitive to any type of chemicals, have high toxicity levels, a severely damaged liver or an immune system that is comprised in any way. This sauna kit will offer the best sauna equipment available to begin a serious and immediate detoxification program.
Only the Best Will Do
This is a complete sauna package with all of the specialized sauna materials needed to build a luxury, eight person traditional sauna for your home or for commercial use. This package features only the highest grade of sauna materials, heater and accessories available. The materials are assembled and packaged by the largest sauna manufacturer in the United States to guarantee that you will receive a quality sauna that you will be able to enjoy for a lifetime.
Quality and Attention to Detail Matter
This sauna kit includes only the finest vertical grain, select grade, clear white aspen tongue and groove boards, an industry first. A classification of select grade is the highest grade of pure poplar wood that is available. This exceeds "Grade A"that can be found in most other saunas and kits available in stores and online. The vertical grain, select grade, clear white aspen comes from a winter harvest to ensure it is snow white in color. All clear white aspen in this sauna kit is hand selected from continuous 8 foot boards. This insures that your sauna will be made from the finest material available and will appear as beautiful as the first day of use through decades to come. The clear white aspen provided in this sauna kit will be vertical boards that run from top to bottom, never using a bench as a mask to hide shorter boards to cut material costs. We are dedicated to providing the world's finest sauna kit materials available.
Classic and Functional Design
This sauna kit includes double tier L-shaped, pre-assembled sauna benches made from 2" x 4" white aspen frames. The top of the sauna benches is made from 1" x 4" clear white aspen boards. The top benches have a backrest that is pre-assembled along the upper benches for simple installation. The sauna door that is offered in this sauna kit is pre-hung to save you time. The all glass sauna door is 24" x 80" which has a suggested rough opening of 27 1/2" x 82 1/4". The all glass sauna door is designed for heavy commercial sauna use. This sauna door is incredibly durable, flawlessly built and beautiful.
A Great Sauna Starts With A Great Heater
Both sauna heaters offered in this kit have a large rock capacity, built to pour water over, for a true steamy Finnish sauna experience. These premium heaters are made in Finland and are also both UL and cUL Listed to ensure their safe use in your home or commercial setting. FINO Sauna heaters can be configured for this kit. Choose the heater that best fits your need:
- FINO 6.0 KW sauna heater with chrome digital D60 controls which mounts outside the sauna wall
The FINO sauna heater has a lifetime warranty. If you are building an outdoor sauna FINO Sauna Heater with Digital D60 controls are the only controls that are durable enough to be able to withstand the elements.
A Complete Package
Everything is included in this sauna kit from the louvered vents, heater guardrail, Finnish sauna stones, specialized vapor proof sauna wall light, aluminum foil sauna vapor barrier to the detailed trim for the corners. Options that can be added are specialized LED spectra lighting as well as indirect lighting that is hidden behind the long aspen boards. These lighting options will give your sauna tremendous ambiance as well as a spectacular interior appearance. Extra clear white aspen to finish a front wall outside of the sauna can also be added.
The interior dimensions of this sauna kit measures 72"D x 120"W x 84"H.
| Bench Configuration | L-Shaped |
|---|---|
| Heater (Kw.) | 8.0 |
| Height (Ft.) | 7 |
| Length (Ft.) | 6 |
| Cubic Footage | 408 |
| Width (Ft.) | 10 |
You may also be interested in
-
FINO HNVR 80-3 Phase Sauna Heater with Digital ControlsFrom $1,985.70
To $2,614.55







